7 Picadilly Drive
Caledonia Meadows, Mandeville
Manchester Jamaica |
Print ListingTop of the morning to you |
Kingston & St. Andrew, Kingston 5
USD $3,852
- JMD $606,844
- CAD $5,114
- €3,226
- £2,756
FOR Rent
- MLS-97721
- Commercial Bldg/Offices
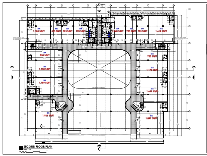
Ultra modern commercial complex / business center, centrally located in the heart of New Kingston. Suitable for pharmacies, doctor offices, retail or commercial businesses. Amenities include; security, generator, back-up water, elevators and ample parking. Unit 301 is approximately 1,926 square feet. Maintenance is $8 per square feet plus GCT per annum. Completion May 2025. Call for more details!
|
Outside
|
Site Influences
|
NEW QUEST REALTY JAMAICA LTD
7 Picadilly Drive Caledonia MeadowsMandeville, Jamaica
Tel: 876-427-6098 / 876-569-4096
Fax: 876-625-2368
7 Picadilly Drive Caledonia MeadowsMandeville, Jamaica
Tel: 876-427-6098 / 876-569-4096
Fax: 876-625-2368
